
LJG阶梯式格栅
概述
LJG型阶梯式格栅改变了传统格栅的清污方式,可解决传统格栅存在的污物卡阻、缠绕的难题。适用于城市污水处理厂、工业废水等行业中,是一种新型的前级处理筛分设备。
工作原理
LJG型阶梯式格栅除污机主要由减速机、动栅片、静栅片及偏心旋转机构等部件组成。偏心旋转机构在电机减速机的驱动下,使动栅片相对于静栅片作自动交替运动,从而将被拦
截的固体悬浮物由动栅片逐级从水中移到卸料口。
性能特点
1.由于采用阶梯式清污方式,可彻底避免杂物卡阻、缠绕的烦恼,运行可靠,清除效果好。
2.驱动装置设于机架上部,水下无传动机构。高性能,低压力损失,不受脂肪、碎屑和砂砾的影响。
3.可利用可编程控制器,液位差控制仪实现全自动控制。
4.设置有机械和电气两套过载保护系统,当设备遇到意外事故时,可产生声光报警,并使设备紧急停止。

过水流量表
|
型号 |
LJG600 |
LJG800 |
LJG1000 |
LJG1200 |
LJG1500 |
LJG1800 |
LJG2000 |
||
|
栅前水深(m) |
1.0 |
1.0 |
1.0 |
1.0 |
1.0 |
1.0 |
1.0 |
||
|
液体流速(m/s) |
1.0 |
1.0 |
1.0 |
1.0 |
1.0 |
1.0 |
1.0 |
||
|
栅 |
3 |
过 |
9820 |
14762 |
19226 |
23912 |
28297 |
25579 |
39978 |
|
5 |
12099 |
18101 |
23900 |
29906 |
35409 |
44099 |
50108 |
||
|
10 |
14798 |
22096 |
29389 |
36597 |
43607 |
54490 |
61599 |
||
|
15 |
19762 |
29121 |
41908 |
49976 |
60716 |
76900 |
86566 |
||
|
20 |
25768 |
37892 |
54568 |
63662 |
81852 |
101556 |
113688 |
||
主要性能参数表:
|
参数/型号 |
LJG |
LJG |
LJG |
LJG |
LJG |
LJG |
LJG |
LJG |
LJG |
LJG |
LJG |
LJG |
LJG |
|
设备宽W0(mm) |
600 |
800 |
1000 |
1200 |
1400 |
1600 |
1800 |
2000 |
2200 |
2400 |
2600 |
2800 |
3000 |
|
电动机功率(Kw) |
0.75 |
1.5 |
2.2 |
||||||||||
|
栅隙(mm) |
3、5、10、15、20 |
||||||||||||
|
安装角度α |
45°、50°、55° |
||||||||||||
|
沟宽W(mm) |
700 |
900 |
1100 |
1300 |
1500 |
1700 |
1900 |
2100 |
2300 |
2500 |
2700 |
2900 |
3100 |
|
沟深H(mm) |
<3000(用户自定) |
||||||||||||
|
导流槽长L(mm) |
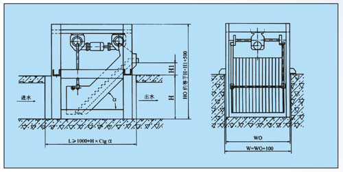
≥1000+H×Ctg α |
||||||||||||
|
卸料口高H1(mm) |
500(用户自定) |
||||||||||||
|
设备总高H0(mm) |
H+H1+500 |
||||||||||||
LJG-A型阶梯式格栅安装示意图

LJG-B型阶梯式格栅安装示意图
